• Chi siamo
  • Contatti
  • lang ITALIANO
    • lang ITALIANO
    • lang ENGLISH
    • lang РУС
Gruppo Iodice Immobiliare Sabaudia
  • Home
  • Affitti estivi
  • Vendite
  • Vendite Prestige
  • Affitti

VILLA CON ACCESSO DIRETTO A LAGO E MARE

Sabaudia, via Lungomare Pontino.

V855

CODICE

€ 1.250.000,00

PREZZO

241

MQ

15

N. LOCALI

  • DESCRIZIONE
  • MAPPA

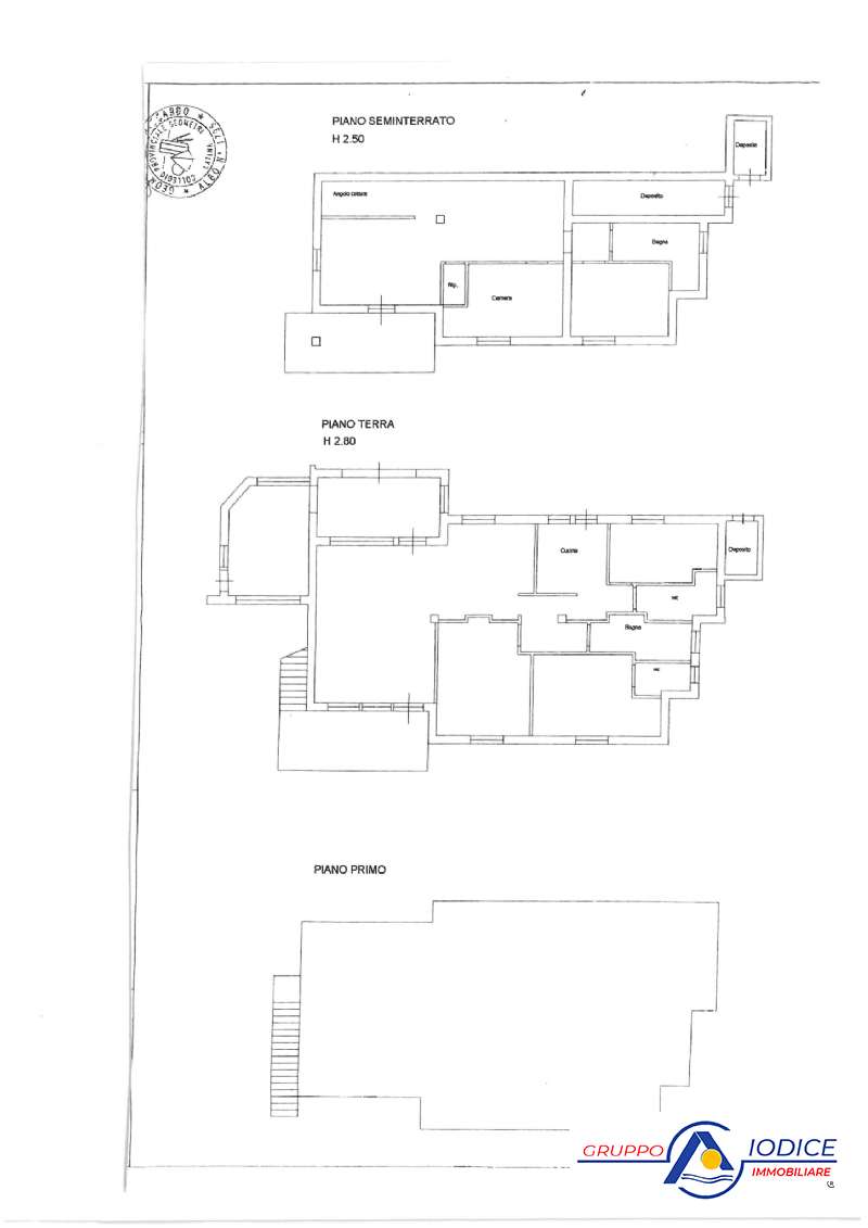
Villa esclusiva con accesso diretto a lago e mare – Consorzio Terra Bella, Sabaudia Nel prestigioso Consorzio Terra Bella, uno dei contesti più riservati del Lungomare di Sabaudia, proponiamo in vendita una villa di pregio immersa nella macchia mediterranea, con accesso diretto al Lago di Paola e sottopassaggio privato condominiale che conduce alla spiaggia delle dune. La proprietà si sviluppa su tre livelli oltre dependance indipendente, per una superficie complessiva di circa 5.000 mq tra coperto e scoperto, ed è completata da imbarcadero privato sul lago con terreno esclusivo di circa 2.000 mq e accesso autonomo, elemento di rara reperibilità. Composizione: Piano Terra: salone con camino e terrazza solarium, sala da pranzo, cucina semi-abitabile, 3 camere (di cui una con bagno en suite), 2 bagni. Piano Seminterrato: soggiorno, cucinino finestrato, 2 camere matrimoniali, bagno, ripostiglio e spazio esterno a livello. Piano Primo: terrazza coperta con vetrate antivento, barbecue e sedute in muratura. Dependance: monolocale con bagno. Dotazioni: aria condizionata, riscaldamento, pozzo artesiano, zanzariere, inferriate. Doppio accesso, di cui uno carrabile indipendente dal lungomare con ampio parcheggio. Massima privacy pur con servizi condominiali e guardiania h24. Soluzione unica per posizione, privacy e accesso diretto a lago e mare, in una delle località più esclusive del litorale laziale.

Residenziali Vendita Villa Unifamiliare
  • libero al rogito
  • 3
  • intero edificio
  • 3
  • 5
  • 2
  • 1
  • 5
  • Semi abitabile
  • 3
  • 1
  • 3
  • Sì
  • Sì
  • Sì
  • Sì
  • Autonomo
  • GPL
  • Parziale
  • Discreto
  • 1970
  • Signorile
  • Buono
  • Buono
  • Sì
  • Sì
  • Sì
  • Sì
  • Sì
  • Sì
  • Singolo
  • Barriere architettoniche presenti
  • Legno
  • Vetro/legno
  • G
  • nord-ovest-sud-est
  • Cotto
  • Ceramica
  • Cotto
  • Ceramica
  • Granito
  • 2
  • Buono
  • 1
  • 4
  • Sì
  • No
  • Si
€ 1.250.000,00 PREZZO 241 MQ 15 N. LOCALI 5 N. BAGNI
Categoria: Residenziali
Spese mensili: 7000.0000
Contratto: Vendita
Tipo spese: 1
Tipologia: Villa Unifamiliare

RICHIESTA INFORMAZIONI

Show Default

VILLA CON ACCESSO DIRETTO A LAGO E MARE

Sabaudia, via Lungomare Pontino.

V855

CODICE

€ 1.250.000,00

PREZZO

241

MQ

15

N. LOCALI

RICHIESTA INFORMAZIONI

Gruppo Iodice Immobiliare Sabaudia

Professionalità e cortesia.

Associato FIAIP

CONTATTI

Via Torino, 7A
Piazza del Comune, 5
04016 - Sabaudia (LT) Italia
+39 0773-517450
+39 0773-518070
info@iodiceimmobiliare.it

KEEP IN TOUCH

CONSULENTE PARTNER

Consulente Partner Unicredit SubitoCasa
  • Privacy & Cookies
Show Default © All Rights Reserved, Iodice Immobiliare Srl - P. IVA IT 01973410598 - Capitale sociale int. versato € 10.200,00 - REA: LT 136500
Iodice Immobiliare Srl usa i cookie per migliorare la tua esperienza di navigazione. Continuando a visitare il sito ne accetti l'uso. Maggiori informazioni. OK