• Chi siamo
  • Contatti
  • lang ITALIANO
    • lang ITALIANO
    • lang ENGLISH
    • lang РУС
Gruppo Iodice Immobiliare Sabaudia
  • Home
  • Affitti estivi
  • Vendite
  • Vendite Prestige
  • Affitti

LUMINOSO APPARTAMENTO RISTRUTTURATO CON BALCONE

Latina, via Adua.

V857

CODICE

€ 180.000,00

PREZZO

92

MQ

5

N. LOCALI

  • DESCRIZIONE
  • MAPPA

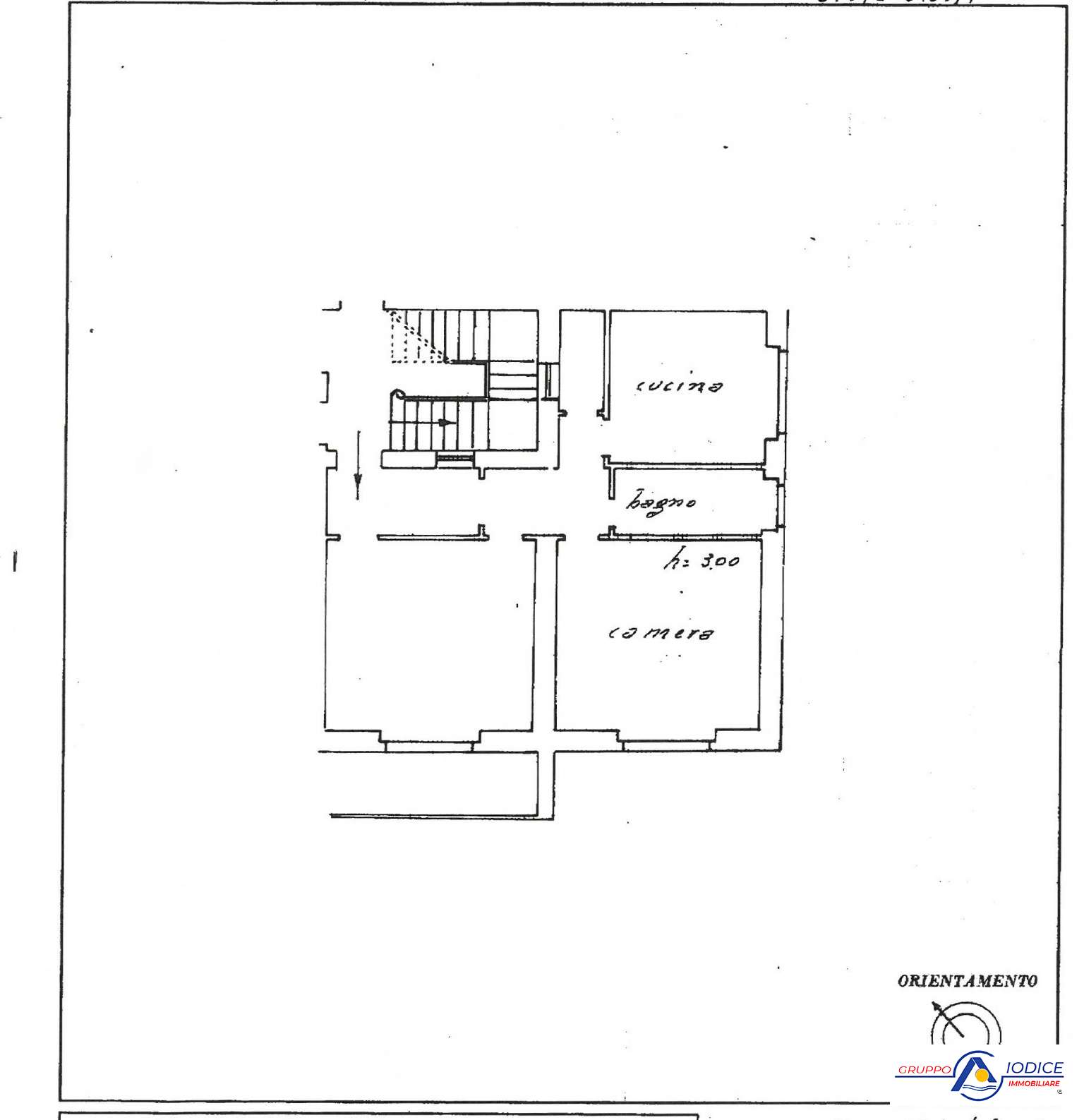
In posizione centrale e strategica, a pochissimi metri dal polo universitario di Latina e dalla piazza comunale, proponiamo in vendita un appartamento completamente ristrutturato posto al primo livello di una palazzina di 4 piani e sole 12 unità immobiliari. L’immobile si compone di un ampio e luminoso soggiorno/salotto con accesso ad un balcone semi-vivibile ben esposto. La cucina è separata, abitabile e dotata di un comodo ripostiglio. La zona notte comprende una spaziosa camera matrimoniale ed un bagno finestrato completo di doccia. L’appartamento si presenta in ottime condizioni, con esposizione Sud/Est che garantisce luminosità durante tutto l’arco della giornata. È dotato di aria condizionata, serrande elettriche, infissi in PVC colore bianco con doppio vetro, zanzariere e riscaldamento autonomo con caldaia. Completano la proprietà un posto auto interno all’area condominiale accessibile tramite il cancello carrabile automatizzato. Soluzione ideale sia come abitazione principale, sia come investimento, grazie alla vicinanza all’università e ai principali servizi della città.

Residenziali Vendita Appartamento
  • libero al rogito
  • 1
  • ammezzato
  • 4
  • 1
  • 1
  • 1
  • Abitabile
  • 1
  • 1
  • Sì
  • Sì
  • Autonomo
  • Metano
  • Parziale
  • Ottimo
  • 1967
  • Economica
  • Ristrutturato
  • Discreto
  • Sì
  • Sì
  • Sì
  • Sì
  • Sì
  • Centralizzato
  • Barriere architettoniche presenti
  • Plastica
  • Doppio vetro/plastica
  • G
  • sud-est
  • Ceramica
  • Ceramica
  • Ceramica
  • Ceramica
  • Ceramica
  • 2
  • Discreto
  • 3
  • No
  • No
€ 180.000,00 PREZZO 92 MQ 5 N. LOCALI 1 N. BAGNI
Categoria: Residenziali
Spese mensili: 60.0000
Contratto: Vendita
Tipologia: Appartamento

RICHIESTA INFORMAZIONI

Show Default

LUMINOSO APPARTAMENTO RISTRUTTURATO CON BALCONE

Latina, via Adua.

V857

CODICE

€ 180.000,00

PREZZO

92

MQ

5

N. LOCALI

RICHIESTA INFORMAZIONI

Gruppo Iodice Immobiliare Sabaudia

Professionalità e cortesia.

Associato FIAIP

CONTATTI

Via Torino, 7A
Piazza del Comune, 5
04016 - Sabaudia (LT) Italia
+39 0773-517450
+39 0773-518070
info@iodiceimmobiliare.it

KEEP IN TOUCH

CONSULENTE PARTNER

Consulente Partner Unicredit SubitoCasa
  • Privacy & Cookies
Show Default © All Rights Reserved, Iodice Immobiliare Srl - P. IVA IT 01973410598 - Capitale sociale int. versato € 10.200,00 - REA: LT 136500
Iodice Immobiliare Srl usa i cookie per migliorare la tua esperienza di navigazione. Continuando a visitare il sito ne accetti l'uso. Maggiori informazioni. OK