• Chi siamo
  • Contatti
  • lang ITALIANO
    • lang ITALIANO
    • lang ENGLISH
    • lang РУС
Gruppo Iodice Immobiliare Sabaudia
  • Home
  • Affitti estivi
  • Vendite
  • Vendite Prestige
  • Affitti

APPARTAMENTO AMPIA METRATURA CENTRALISSIMO

Sabaudia, via Capua.

V859

CODICE

€ 195.000,00

PREZZO

100

MQ

5

N. LOCALI

  • DESCRIZIONE
  • MAPPA

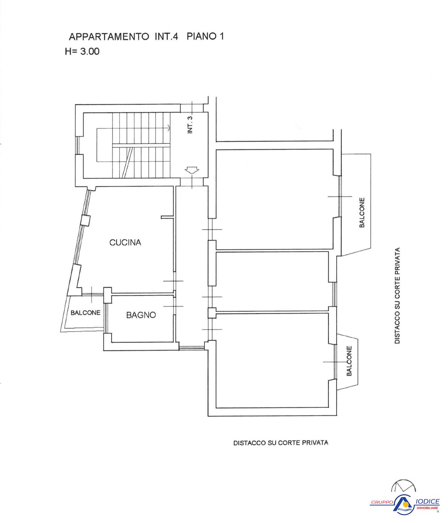
Nel cuore del centro cittadino, in una strada estremamente riservata, proponiamo in vendita un appartamento posto al primo ed ultimo piano di una palazzina composta da sole quattro unità abitative. La gestione è completamente autonoma, senza amministratore e senza spese condominiali, un aspetto di grande valore per chi desidera indipendenza e costi di gestione ridotti.A questo si aggiunge una rendita catastale particolarmente contenuta, che garantisce imposte e costi fiscali più bassi, rendendo l’immobile ancora più interessante sia come abitazione principale sia come investimento. La posizione è strategica: a pochi passi dal centro storico e da tutti i principali servizi, l’immobile consente inoltre di raggiungere il mare, distante circa 1,5 km, comodamente a piedi o tramite la vicina pista ciclopedonale. A pochissimi metri dal fabbricato si trova anche una delle suggestive pinete che caratterizzano l’area urbana di Sabaudia. L’abitazione si distingue per la notevole luminosità e per la funzionale distribuzione degli spazi interni. L’ingresso si apre su un’ampia zona giorno con soggiorno luminoso e balcone esposto a sud/ovest, perfetto per godere della luce naturale per gran parte della giornata. La cucina è abitabile, molto ariosa, dotata di tre finestre e di un comodo balconcino di servizio. La zona notte è composta da due camere da letto, di cui una con balcone esposto a sud/ovest, e da un bagno finestrato. Una soluzione ideale per chi desidera vivere in centro, in un contesto tranquillo e riservato, con il valore aggiunto dell’assenza di condominio e la comodità di avere il mare a breve distanza.

Residenziali Vendita Appartamento
  • libero al rogito
  • 1
  • 1
  • ammezzato
  • 2
  • 2
  • 1
  • 1
  • Abitabile
  • 3
  • Sì
  • Autonomo
  • Metano
  • Parziale
  • Discreto
  • Già pronto
  • Civile
  • Discreto
  • Buono
  • Sì
  • Sì
  • Sì
  • Centralizzato
  • Barriere architettoniche presenti
  • Plastica
  • Doppio vetro/plastica
  • G
  • est-nord-ovest
  • Ceramica
  • Ceramica
  • Ceramica
  • Ceramica
  • Ceramica
  • 2
  • Buono
  • 2
  • 3
  • Sì
  • No
  • No
€ 195.000,00 PREZZO 100 MQ 5 N. LOCALI 1 N. BAGNI
Categoria: Residenziali
Contratto: Vendita
Tipologia: Appartamento

RICHIESTA INFORMAZIONI

Show Default

APPARTAMENTO AMPIA METRATURA CENTRALISSIMO

Sabaudia, via Capua.

V859

CODICE

€ 195.000,00

PREZZO

100

MQ

5

N. LOCALI

RICHIESTA INFORMAZIONI

Gruppo Iodice Immobiliare Sabaudia

Professionalità e cortesia.

Associato FIAIP

CONTATTI

Via Torino, 7A
Piazza del Comune, 5
04016 - Sabaudia (LT) Italia
+39 0773-517450
+39 0773-518070
info@iodiceimmobiliare.it

KEEP IN TOUCH

CONSULENTE PARTNER

Consulente Partner Unicredit SubitoCasa
  • Privacy & Cookies
Show Default © All Rights Reserved, Iodice Immobiliare Srl - P. IVA IT 01973410598 - Capitale sociale int. versato € 10.200,00 - REA: LT 136500
Iodice Immobiliare Srl usa i cookie per migliorare la tua esperienza di navigazione. Continuando a visitare il sito ne accetti l'uso. Maggiori informazioni. OK